Chiq CTM514NB3 Bruksanvisning
Les nedenfor 📖 manual på norsk for Chiq CTM514NB3 (14 sider) i kategorien Kjøleskap. Denne guiden var nyttig for 3 personer og ble vurdert med 5.0 stjerner i gjennomsnitt av 2 brukere
Side 1/14

USER MANUAL
TOP MOUNT REFRIGERATOR
Customer Service 1300 796 688
www.chiq.com.au
MODEL
CTM515NW
CTM514NB3

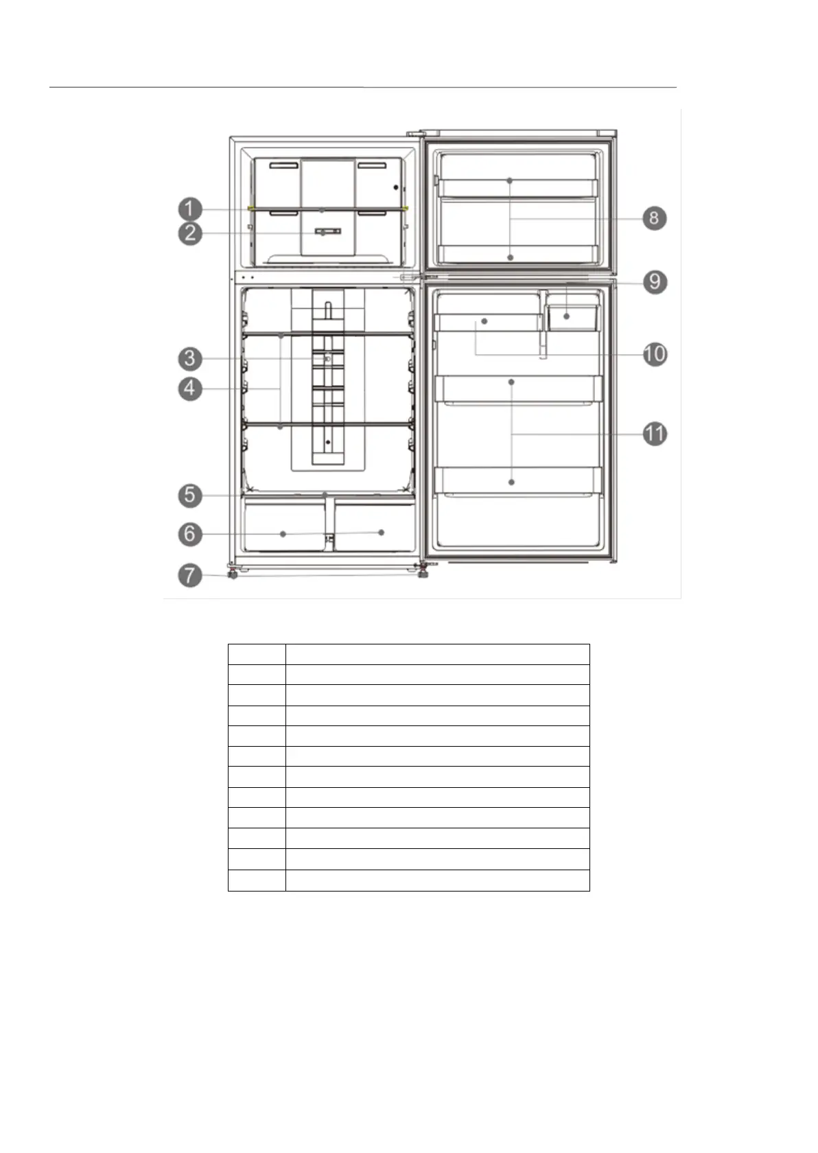
PART NAMES AND LOCATIONS
No Description
1
Freezer glass shelf
2
Air flow adjustment knob
3
Temp setting knob
4
Fridge glass shelf
5
Crisper cover
6
Crisper
7
Leveling foot
8
Freezer door rack
9
Fridge door upper right rack
10
Fridge door upper left rack
11
Fridge door middle bottom rack
IN ACCESSORY BAG: USER MANUAL, WARRANTY CARD, DOOR REVERSAL
PARTS(upper hinge and hinge cover)
As the manufacturer holds the authority to redesign or modify its products without notice:
Any modifications or upgrades of our products will result in this refrigerator varying
slightly from this manual but the functionality will remain the same to that as set out
within this manual.
Produkspesifikasjoner
Merke: | Chiq |
Kategori: | Kjøleskap |
Modell: | CTM514NB3 |
Trenger du hjelp?
Hvis du trenger hjelp med Chiq CTM514NB3 still et spørsmål nedenfor, og andre brukere vil svare deg
Kjøleskap Chiq Manualer
11 Oktober 2025
11 Oktober 2025
11 Oktober 2025
11 Oktober 2025
11 Oktober 2025
11 Oktober 2025
11 Oktober 2025
11 Oktober 2025
11 Oktober 2025
11 Oktober 2025
Kjøleskap Manualer
- Glem Gas
- Consul
- Brass Monkey
- Salora
- Kogan
- Koolatron
- Smeg
- U-Line
- Elvita
- Whynter
- Structural Concepts
- Kernau
- Benavent
- Silva Schneider
- Cylinda
Nyeste Kjøleskap Manualer
11 Oktober 2025
10 Oktober 2025
10 Oktober 2025
10 Oktober 2025
10 Oktober 2025
10 Oktober 2025
10 Oktober 2025
10 Oktober 2025
10 Oktober 2025
10 Oktober 2025