Delta 559HA-DST Bruksanvisning
Les nedenfor 📖 manual på norsk for Delta 559HA-DST (1 sider) i kategorien Kran. Denne guiden var nyttig for 6 personer og ble vurdert med 4.7 stjerner i gjennomsnitt av 3.5 brukere
Side 1/1

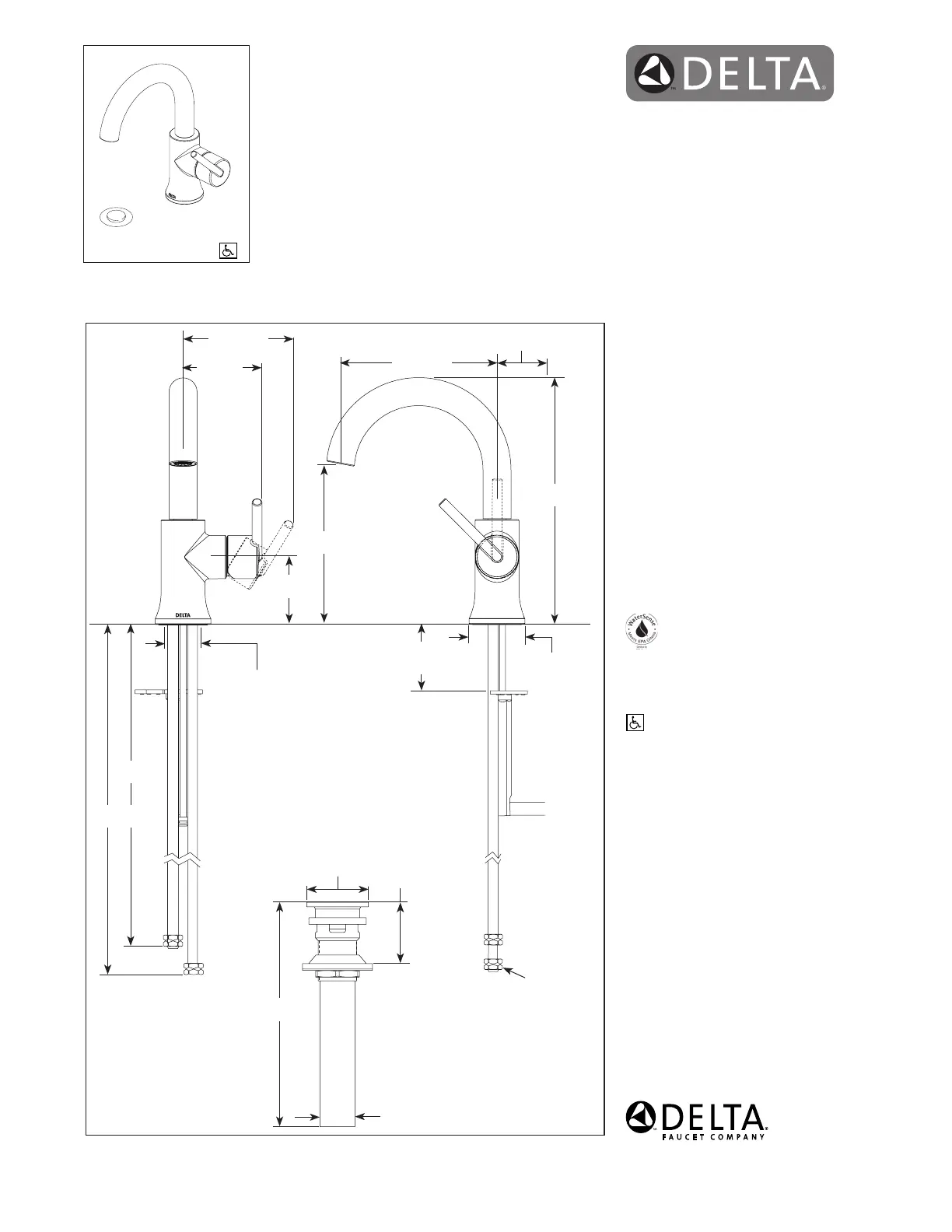
LAVATORY FAUCETS
■ Trinsic
®
Collection
■ High Arc Swivel Spout
Submitted Model No.: _______________________________________________
Specific Features: __________________________________________________
STANDARD SPECIFICATIONS:
• Max. 1.20 gpm @ 60 psi, 4.54 L/min @ 414 kPa
(559HA-DST)
• Max. 1.00 gpm @ 60 psi, 3.80 L/min @ 414 kPa
(559HA-GPM-DST)
• Single hole mount
• Spout swivels 360˚
• Solid metal construction
• Diamond coated ceramic cartridge
• Red/blue indicator markings
• Models include metal push-pop drain
559HA-▲DST
559HA-GPM-DST
Delta reserves the right (1) to make changes in specifications and materials, and (2) to change or discontinue
models, both without notice or obligation. Dimensions are for reference only. See current full-line price book or
www.deltafaucet.com for finish options and product availability.
DSP-L-559HA-DST Rev. C
COMPLIES WITH:
• ASME A112.18.1 / CSA B125.1
• ASME A112.18.2 / CSA B125.2
Indicates compliance to
ICC/ANSI A117.1
• EPA WaterSense
®
• Verified compliant with .25% weighted average
Pb content regulations.
1 1/4"
(32 mm) Dia.
2 1/8"
(54 mm)
Dia.
1 5/8"
(41 mm)
to
2 3/8"
(60 mm)
8"
(203 mm)
5 3/4"
(146 mm)
3" (76 mm)
Max. Deck
Thickness
35 "
(889 mm)
31"
(787 mm)
2"
(51 mm)
8 7/8"
(225 mm)
5 9/16"
(141 mm)
3/8" (9 mm)
Compression Fitting
55 E. 111th Street, Indianapolis, Indiana 46280
350 South Edgeware Road, St. Thomas, ON N5P 4L1
© 2016 Masco Corporation of Indiana
Min. 1 3/4" (44 mm)
Clearance To Back Splash
1 1/4" to 1 1/2"
(32 mm to 38 mm)
Hole Size
▲ Designate Proper Finish Suffix
WARRANTY
•
Lifetime limited warranty on parts (other than
electronic parts and batteries) and finishes:
or, for commercial users, for 5 years from
date of purchase.
•
5 year limited warranty on electronic parts
(other than batteries); or, for commercial
users, for 1 year from the date of purchase.
No warranty is provided on batteries.
2 3/8"
(60 mm)
2 7/8"
(73 mm)
3 7/8"
(98 mm)
FEATURES:
• Euro-Motion Diamond™ Valve
Produkspesifikasjoner
| Merke: | Delta |
| Kategori: | Kran |
| Modell: | 559HA-DST |
Trenger du hjelp?
Hvis du trenger hjelp med Delta 559HA-DST still et spørsmål nedenfor, og andre brukere vil svare deg
Kran Delta Manualer
6 Oktober 2025
5 Oktober 2025
5 Oktober 2025
5 Oktober 2025
5 Oktober 2025
5 Oktober 2025
5 Oktober 2025
5 Oktober 2025
5 Oktober 2025
5 Oktober 2025
Kran Manualer
- IKEA
- Rohl
- Graff
- Vestil
- Sussex
- American Standard
- Jacuzzi
- Peerless-AV
- Biltema
- Oliveri
- Karran
- Franke
- Rogerseller
- Moen
- Sani-Lav
Nyeste Kran Manualer
13 Oktober 2025
13 Oktober 2025
13 Oktober 2025
13 Oktober 2025
13 Oktober 2025
13 Oktober 2025
13 Oktober 2025
13 Oktober 2025
13 Oktober 2025
13 Oktober 2025