Ikegami ISD-A14S Bruksanvisning
Ikegami
Sikkerhetskamera
ISD-A14S
Les nedenfor 📖 manual på norsk for Ikegami ISD-A14S (2 sider) i kategorien Sikkerhetskamera. Denne guiden var nyttig for 3 personer og ble vurdert med 4.5 stjerner i gjennomsnitt av 2 brukere
Side 1/2

Ikegami Tsushinki Co., Ltd.
INSTRUCTION MANUAL
MODEL
OUTDOOR USE WARNING
ISD-A14S
COLOR CAMERA
TCB014411-00
Ikegami Electronics (U.S.A.), Inc.
300 Route 17 South, Mahwah, NJ 07430, U.S.A.
Phone: (201) 368-9171, FAX (201) 569-1626
www.Ikegami.com
WARNING – TO PREVENT FIRE OR
ELECTRIC SHOCK, DO NOT
EXPOSE THIS APPLIANCE TO RAIN
OR MOISTURE.
The apparatus shall not be exposed to
dripping or splashing and that no
objects filled with liquids, such as vases,
shall be placed on the apparatus.
Thank you very much for your wise choice of the Ikegami Color Camera.
Please carefully read this Instruction Manual to keep your camera at
full capacity. This video camera is equipped with a 1/3.2" Digital Pixel
Sensor (DPS) system.
The exclamation point within an equilateral triangle is
intended to alert the user to the presence of important
operating and maintenance (servicing) instructions in the
literature accompanying the appliance.
NOTE:
This equipment has been tested and found to comply with the
limits for a Class A digital device, pursuant to part 15 of the FCC
Rules. These limits are designed to provide reasonable protection
against harmful interference when the equipment is operated in
a commercial environment. This equipment generates, uses, and
can radiate radio frequency energy and, if not installed and used
in accordance with the instruction manual, may cause harmful
interference to radio communications. Operation of this equipment
in a residential area is likely to cause harmful interference in which
case the user will be required to correct the interference at his own
expense.
CAUTION;
ANY CHANGES OR MODIFICATIONS NOT EXPRESSLY
APPROVED BY THE PART RESPONSIBLE FOR COMPLIANCE
COULD VOID THE USERS AUTHORITY TO OPERATE THE
EQUIPMENT.
Instructions for Disposal of Electric and Electronic
Equipment in Private Household
Disposal of used Electric and Electronic Equipment
(Applicable in the European Union and other European
countries with separate collection systems)
This symbol on the product, or in the related documents in
the package, indicates that this product shall not be treated
as normal household waste.Instead, it should be taken to a
proper applicable collection point or depot for the recycling
of electric and electronic equipment.
By ensuring this product is disposed of correctly, you will help prevent
possible negative consequences for the environment and human health,
which could otherwise be caused by inappropriate waste handling of
this product. The recycling of materials will help to conserve natural
resources.
For more detailed information about recycling of this product, please
contact your local city authority, your household waste disposal service
or the place where you purchased the product.
IMPORTANT SAFETY INSTRUCTIONS
1) Read these instructions.
2) Keep these instructions.
3) Heed all warnings.
4) Follow all instructions.
5) Do not use this apparatus near water.
6) Clean only with a dry cloth.
7) Do not block any of the ventilation openings. Install in accordance
with the manufacturer's instructions.
8) Do not install near any heat sources such as radiators, heat
registers, stoves, or other apparatus (including amplifiers) that
produce heat.
9) Do not defeat the safety purpose of the polarized or grounding type
plug. A polarized plug has two blades with one wider than the other.
A grounding type plug has two blades and a third grounding prong.
The wide blade or the third prong is provided for your safety. When
the provided plug does not fit into your outlet, consult an electrician
for replacement of the obsolete outlet.
10) Protect the power cord from being walked on or pinched particularly
at plugs, convenience receptacles, and the point where they exit
from the apparatus.
11) Only use the attachments/accessories specified by the
manufacturer.
12) Use only with a cart, stand, tripod, bracket, or
table specified by the manufacturer, or sold with
the apparatus. When a cart is used, use caution
when moving the cart/apparatus combination to
avoid injury from tip-over.
13) Unplug this apparatus during lightning storms or when unused for
long periods of time.
14) Refer all servicing to qualified service personnel. Servicing is
required when the apparatus has been damaged in any way, such
as power supply cord or plug is damaged, liquid has been spilled
or objects have fallen into the apparatus, the apparatus has been
exposed to rain or moisture, does not operate normally, or has been
dropped.
15) CAUTION - These servicing instructions are for use by qualified
service personnel only. To reduce the risk of electric shock, do not
perform any servicing other than that contained in the operating
instructions unless you are qualified to do so.
1. Handling precautions
• Do not install the camera in a water-splashed or highly
humid environment.
• Do not use the camera where the ambient temperature
drops below -10°C or rises above +50°C. The images and
component parts may be adversely affected or the camera
may not function correctly.
• Never open the camera case because there are precision
electrical and electronic components inside and an
accident may result.
• Be sure to turn off the power before installing or making
connections.
• Be careful not to drop or give a strong shock to the camera
while transporting it.
• Do not touch the image sensor.
• Do not orientate the camera directly towards the sun.
• Images on the screen may look slightly rough at high
temperatures because of the image sensor characteristics.
This is not a system failure, however.
2. General
This color camera is equipped with a 1/3.2" Digital Pixel
Sensor (DPS) system. It features WDR, high sensitivity and
high resolution, and is equipped with many functions. The
camera is best suited for being set up at ATMs and being
housed in other systems.
3. Features
(1) Hyper Wide Light Dynamic Range (Hyper WDR)
The WDR function provides for very effective
compensation of high light and dark areas in screen. This
situation may occur generally outside or viewing from
indoor to outdoor scenes. Even in large light fluctuations,
bright-and-dark subjects can be captured and viewed
clearly with a natural appearance.
(2) Small-size cube shape
The small-size cube shape of the camera allows it to be
most suitable to be installed into various devices such as
ATM units.
(3) High-quality picture and high resolution
The camera is designed for smear-free imaging and low
noise. The well-designed DSP, Digital Signal Processor,
effectively enhances details, which achieves crisp and
sharp images with a high signal-to-noise ratio. The high
resolution of a horizontal resolution of 700 TV lines is
assured.
(4) Automatic white balance
Thanks to the automatic follow-up white balance control
(ATW), the white balance adjusts itself no matter how
great the subject's color temperature fluctuates.
(5) Automatic Sensitivity Control
In conjunction with the wide dynamic control by the multi-
sampling system, the camera incorporates the automatic
sensitivity control function that always provides adequate
and bright images even through its fixed-iris lens.
4. Names of parts and
their functions
4
3
2
5
1
①
Focus lock screw
With focus adjustment complete, this is used to
mechanically lock the lens. Tighten up the two screws,
upper and lower, to lock the lens.
②
Lens mount
This is used to mount the lens on the camera.
③
Set-up unit connector
Just hook up the set-up unit (sold separately), and the
camera's settings can be readily modified. For details on
the set-up unit, contact your local salesperson.
④
Video output and DC12V power input connectors
This connector is used to connect the video output cable
and power input cable. Use the accompanying harness.
The power input DC jack is of the Center Plus type.
* This installation should be made by a qualified service
person and should conform to all local codes.
* Note: Before making connection, be sure that the power
is in the range of DC12V ± 10%. Be very careful
not to employ AC power because otherwise the
camera may get damaged.
⑤
Lens
M12 mount lens can be mounted on the camera.

5.
Warranty and after-sale service
• Please consult Ikegami Electronics (U.S.A.) Inc. or your
dealer for full warranty information. Your dealer will repair or
replace free of charge within the warranty period according
to the warranty coverage.
• For repairs after the expiration of the warranty period,
consult your dealer or local salesperson. It will first be
judged whether the trouble is repairable or not. Charged
servicing will then be made upon request of the user.
• Before you ask for servicing, take trouble of reading the
Instruction Manual. If the unit still fails, take note of the
model number, date of purchase, problem, etc. in detail,
and inform your dealer or sales representative.
• If you have questions about the after-sale service, contact
your dealer or local salesperson.
* We suggest you ask for preventive inspection earlier.
6. Specifications
(1) Image Sensor: 1/3.2-inch DPS CMOS sensor
(2) Pixel Number: Approx. 1,230,000 pixels,
1280 (H) × 960 (V)
(3) Scanning system: NTCS: 525 TV lines / 59.94Hz ,
2 : 1 interlace
(4) Sync system: Internal synchronization (Crystal-lock)
(5) Video output: VBS 1.0Vp-p/75 ohms
(6) Resolution: Horizontal; 700 TV lines
(7) S/N ratio: Over 50dB (p-p/rms)
(8) Minimum object
illumination: 0.2Lx/F2.0 (VBS output:50%)
0.23Lx/F2.1 (VBS output:50%)
(9) Day/Night switching: Digital Day/Night
Auto or Manual, Selectable
(10)
Wide Dynamic Range: Built-in
(11)
AGC: ON/OFF (Variable)
(12)
White Balance Control: ATW(Indoor/Outdoor/AUTO1/
AUTO2)/PUSH/PUSHLOCK/
MANUAL,
(13)
Digital Noise Reduction: Built-in, On or OFF, Selectable
(DNR function)
(14)
Private Mask Setting: Built-in. Up to 16 areas
(15)
Camera ID: 2 Line, up to 26 characters
(alphanumeric and symbols)
(16)
Local set-up function: Selections and settings possible on
screen display
(The set-up unit (sold separately) is
required.)
(17)
Operating Temperature
and Relative humidity: -10 to +50°C, RH 30% to 90%
(No Condensation)
(18)
Lens mount: M12 mount
(19)
Lens: M12 fixed focal lens
(f2.5mm/f2.9mm/f3.6mm)
Focal length
(f)
Lens
mount
Maximum
aperture ratio
(F)
View angle
(H)
View angle
(V)
2.5mm M12 2.1 95.7° 70.1°
2.9mm M12 2.0 84.9° 60.9°
3.6mm M12 2.0 69.6° 50.4°
(20)
Power Requirement: DC12V±10%
(21)
Power Consumption: 2.0W or less
(22)
Outer dimensions: 39.0(W)×39.0(H)×32.5(D) mm
(protrusion included)
(23)
Weight: Approx. 80g
(24)
Input/output connectors:
・
VIDEO OUT BNC
・
DC12V DC jack
( Applicable plug: 5.5 mm dia.,
x 2.1 mm dia., Center Plus)
(25)
Supplied accessories: Instruction Manual, 1 Copy
Power/video integrated cable, 1 pc.
* Specifications and design are subject to change for product
improvements without notice.
7. External Appearance
12±0.5
3-∅3.2
24±0.5
41.6±2
(5.9)
39±2
39±2
(52.7)
32.5±2(4.2)
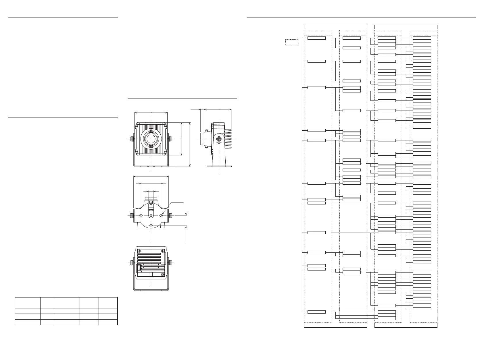
8. Setup Flow Chart
TOP 2ND
TOP 2ND
+SET
+SET
+SET
+SET
+SET
+SET
+SET
+SET
+SET
+SET
+SET
+SET
+SET
+SET
+SET
+SET
+SET
+SET
+SET +SET
+SET
+SET
LRUDE LRUDE LRUDE LRUDE
DAY/NIGHTAUTO
MANUAL
+SET
+SET
+SET
+SET
+SET
+SET
DELAYCN
T0
-255
0-255
0-255
DAY/NIGH
TC
OLOR
B/W
DAY→NIGHT
NIGHT→DAY
BURS
TO
N
OFF
SHUTTER/AGCAUTO MODE SHUT+DCIRIS
DCIRIS
SHUT
AELEVEL 0-255
AG
CO
N
OFF
1/60-1/100000
WDR/ATR
MANUAL
0-52dB
SHUTTER
BRIGHTNESS
OFF
WDR
AGC
MID
HIGH
BRIGHTNESS LOW
MID
HIGH
CONTRAS
TL
OW
LOW
ATR
MID
HIGH
MID
HIGH
CONTRAS
TL
OW
WHITEBAL ATW
BLC
BACKLIGHT OFF
HLC
+SET
+SET
+SET
+SET
+SET
+SET
+SET
SPEED
ENVIRONMENT
POSITION
R-GAIN
B-GAIN
R-GAIN
DELAYCNT
B-GAIN
AUTO2
1-255
INDOOR
OUTDOOR
0-63
0-255
0-255
0-255
1-255
0-255
AUTO1
USER1
USER2
MANUAL
PUSH
PUSHLOCK
LENS DC AUTO
OPEN
CLOSE
0-255SPEED
MODE
FLIP
MANUAL
CAMERARESET YES
PICTADJUST
+SET
DNR
+SET
OFF
V-FLIP
HV-FLIP
SHARPNESS
HUE
COLORGAIN
MODE OFF
BRIGHTNESS 0-255
CONTRAS
T0
-255
0-255
Y/C
Y
C
YLEVE
L1
-7
1-7CLEVEL
0-180
0-255
H-FLIP
+SET
AREASEL
MID
HIGH
CAMERAID
+SET
DEFOG OFF
AUTO
+SET
LEVE
LL
OW
EXIT
+SET
RIGHT
COLOR
TRANSP
TOP
BOTTOM
LEFT
PRIVACY OFF
ON 1/16-16/16
0.50
0.75
1.00
OFF
ON
0-1184
1-8
0.00
0-480
0-480
0-1184
CANCEL
+SET
+SET
+SET
MOSAIC
SAVEALL
NOTSAVE
SETUP MENU
PUSH SET
FOR A WHILE
Produkspesifikasjoner
Merke: | Ikegami |
Kategori: | Sikkerhetskamera |
Modell: | ISD-A14S |
Trenger du hjelp?
Hvis du trenger hjelp med Ikegami ISD-A14S still et spørsmål nedenfor, og andre brukere vil svare deg
Sikkerhetskamera Ikegami Manualer
4 Oktober 2025
4 Oktober 2025
3 Oktober 2025
4 Mars 2025
4 Mars 2025
4 Mars 2025
4 Mars 2025
4 Mars 2025
4 Mars 2025
4 Mars 2025
Sikkerhetskamera Manualer
- Yale
- Eufy
- Schlage
- Dahua Technology
- BZBGear
- Abus
- Vimar
- Revo
- British Telecom
- Mobotix
- Lumens
- Pelco
- Miniland
- Reolink
- Xiaomi
Nyeste Sikkerhetskamera Manualer
6 Oktober 2025
5 Oktober 2025
5 Oktober 2025
5 Oktober 2025
5 Oktober 2025
5 Oktober 2025
5 Oktober 2025
5 Oktober 2025
5 Oktober 2025
4 Oktober 2025