Samsung MOK-100GA Bruksanvisning
Samsung
Ikke kategorisert
MOK-100GA
Les nedenfor 📖 manual på norsk for Samsung MOK-100GA (2 sider) i kategorien Ikke kategorisert. Denne guiden var nyttig for 2 personer og ble vurdert med 4.9 stjerner i gjennomsnitt av 1.5 brukere
Side 1/2

Installation manual
Code-NO : DB68-04774A-00
Guard Cond.
MOK-200GA (Guard Cond. Large)
Installation manual (1) Guard Cond (2) M4x12 Screws (12)
MOK-100GA (Guard Cond. Small)
Installation manual (1) Guard Cond (1) M4x12 Screws (6)
Applied model
Guard Cond Outdoor Unit Size (W x H x D (mm))
MOK-200GA Large Frame : 1295 x 1695 x 765
MOK-100GA Small Frame : 880 x 1695 x 765
Guard Cond.Kit 간지_04774A-00.indd 2 2014-05-12 오후 1:09:12

Assembly Work
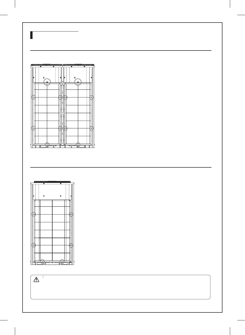
MOK-200GA (Guard Cond. Large)
Large Frame
Place the Guard Cond considering the left and right sides,
and fix it with screws at the place marked with circles.
For the screws marked with ‘*’, since it is already
tightened, you must untighten them and then tighten
them back after placing the Guard Cond underneath the
Cabinet.
MOK-100GA (Guard Cond. Small)
Small Frame
Place the Guard Cond and fix it with screws at the place marked
with circles.
• Check if there’s any vibration or noise from the parts after fixing the Guard Cond.
• Do not touch the heat exchanger. You may get injured by sharp edge of the heat
exchanger or damage it which may cause performance decrease.
CAUTION
Guard Cond.Kit 간지_04774A-00.indd 3 2014-05-12 오후 1:09:12
Produkspesifikasjoner
Merke: | Samsung |
Kategori: | Ikke kategorisert |
Modell: | MOK-100GA |
Trenger du hjelp?
Hvis du trenger hjelp med Samsung MOK-100GA still et spørsmål nedenfor, og andre brukere vil svare deg
Ikke kategorisert Samsung Manualer
9 Oktober 2025
8 Oktober 2025
8 Oktober 2025
8 Oktober 2025
27 September 2025
27 September 2025
27 September 2025
27 September 2025
27 September 2025
27 September 2025
Ikke kategorisert Manualer
- Audeze
- Sophos
- Camille Bauer
- On-Stage
- C2G
- Rommelsbacher
- Intesis
- Leitz
- Honey-Can-Do
- Singularity Computers
- Zipper
- Owon
- Hellberg
- CME
- GameDay
Nyeste Ikke kategorisert Manualer
9 Oktober 2025
9 Oktober 2025
9 Oktober 2025
9 Oktober 2025
9 Oktober 2025
9 Oktober 2025
9 Oktober 2025
9 Oktober 2025
9 Oktober 2025
9 Oktober 2025