Vestil ALLW-2420-4SFL Bruksanvisning
Vestil
Ikke kategorisert
ALLW-2420-4SFL
Les nedenfor 📖 manual på norsk for Vestil ALLW-2420-4SFL (22 sider) i kategorien Ikke kategorisert. Denne guiden var nyttig for 3 personer og ble vurdert med 4.2 stjerner i gjennomsnitt av 2 brukere
Side 1/22

TABLE OF CONTENTS Rev. 8/15/2023 LLW, MANUAL
TABLE OF CONTENTS COPYRIGHT 2021 VESTIL MANUFACTURING CO. Page 1 of 22
LLW, LLPW, ALLW, & ALLPW LIGHT LOAD LIFTERS
(A)LLW-FW (A)LLPW-FW (A)LLW-4SFL (A)LLPW-4SFL
Receiving Instructions
After delivery, remove the packaging from the product. Inspect the product closely to determine whether it
sustained damage during transport. If damage is discovered, record a complete description of it on the bill of
lading. If the product is undamaged, discard the packaging.
NOTE: The end-user is solely responsible for confirming that product design, use, and maintenance comply with
laws, regulations, codes, and mandatory standards applied where the product is used.
Technical Service & Replacement Parts
For answers to questions not addressed in these instructions and to order replacement parts, labels, and
accessories, call our Technical Service and Parts Department at (260) 665-7586. The Department can also be
contacted online at https://www.vestil.com/page-parts-request.php.
Electronic Copies of Instruction Manuals
Additional copies of this instruction manual may be downloaded from https://www.vestil.com/page-
manuals.php.
Vestil Manufacturing Company
2999 North Wayne Street, P.O. Box 507, Angola, IN 46703
Telephone: (260) 665-7586 -or- Toll Free (800) 348-0868
Fax: (260) 665-1339
Web: www.vestil.com e-mail: info@vestil.com
Table of Contents
Page
Specifications (dimensions, capacity, net weight): LLW & ALLW…………………………………………….…….
2
Specifications (dimensions, capacity, net weight): LLPW & ALLPW……………………………………….……....
3
Signal Words….…………………………………………………………………………………………..…..……………....
4
Safety Instructions..…….…………..………………………………………………………………..……………….…..….
4
National Standards………………………………………………………………………………………………………….
4
LLW-202058-FW Exploded View & Bill of Materials….…………….…………………………………....……………...
5
ALLW-2020-FW Exploded View & Bill of Materials…………………..………….………………….….................……
6
ALLW-2020-FWFL Exploded View & Bill of Materials…………………………………………………………………...
7
LLW-202058-FWFL Exploded View & Bill of Materials………………………………………………………………..…
8
LLW-202058-FWWL Exploded View & Bill of Materials…………………………………………….……………….……
9
LLW-242060-4SFL Exploded View & Bill of Materials………………………………...…….…………………………....
10
ALLW-2420-4SFL Exploded View & Bill of Materials……………………………………..............................................
11
LLPW-500-FW Exploded View & Bill of Materials……………………………………….....……………………………..
12
LLPW-500-FWFL Exploded View & Bill of Materials………………………………..…………………………….……….
13
ALLPW-500-FW Exploded View & Bill of Materials………………………………………………………….…….……..
14
ALLPW-500-FWFL Exploded View & Bill of Materials……………………………………………………………….…....
15
LLPW-500-4SFL Exploded View & Bill of Materials…………………………………….………………….................….
16
ALLPW-500-4SFL Exploded View & Bill of Materials………………………………………………………….………….
17
Raising and Lowering the Deck….……………………………………………………………………………….………..
18
Using the Hand Truck..…..…………………………………………………………………………...………………………
18 - 19
Record of Satisfactory Condition……………………………………………………………………….……………….
19
Inspections & Maintenance……………………………………………………………………………............................
20
Labeling Diagram……………………………………………………………………………………..…………………..….
21
Limited Warranty…...………………………………………………………………………………………………………....
22

TABLE OF CONTENTS Rev. 8/15/2023 LLW, MANUAL
TABLE OF CONTENTS COPYRIGHT 2021 VESTIL MANUFACTURING CO. Page 2 of 22
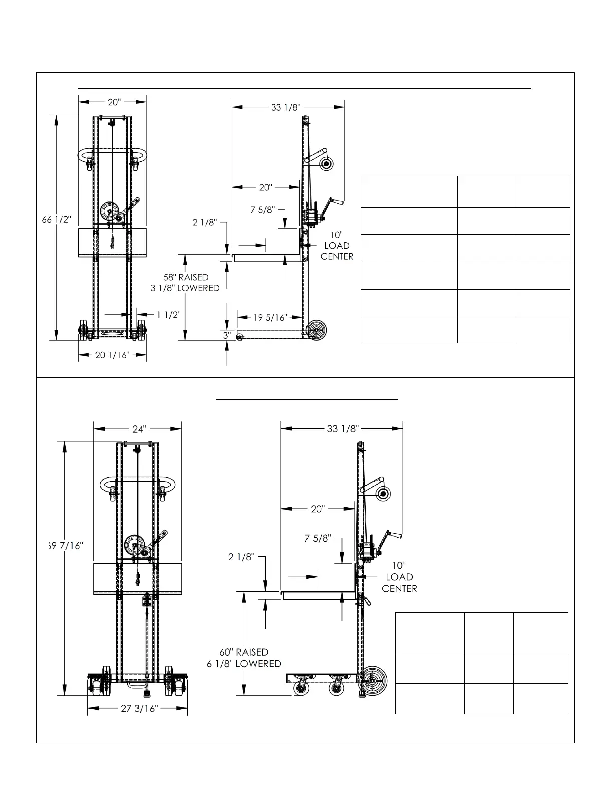
SPECIFICATIONS
Dimensions, net weight, and capacity information for standard models appear in the diagrams & tables.
LLW-202058-FW; ALLW-2020-FW; LLW-202058-FWFL; ALLW-2020-FWFL; & LLW-202058-FWWL
LLW-242060-4SFL & ALLW-2420-4SFL
Model
Net
Weight
Capacity
LLW-202058-FW
154 LB.
70 KG
400 lb.
181.8 kg
LLW-202058-FWFL
157 LB.
71.4 KG
400 lb.
181.8 kg
ALLW-2020-FW
84 LB.
38.2 KG
400 lb.
181.8 kg
LLW-202058-FWWL
156 LB.
70.9 KG
400 lb.
181.8 kg
ALLW-2020-FWFL
86 LB.
39.1 KG
400 lb.
181.8 kg
Model
Net
Weight
Capacity
LLW-242060-
4SFL
215 LB.
97.7 KG
400 lb.
181.8 kg
ALLW-2420-
4SFL
127 LB.
57.7 KG
400 lb.
181.8 kg
Produkspesifikasjoner
Merke: | Vestil |
Kategori: | Ikke kategorisert |
Modell: | ALLW-2420-4SFL |
Trenger du hjelp?
Hvis du trenger hjelp med Vestil ALLW-2420-4SFL still et spørsmål nedenfor, og andre brukere vil svare deg
Ikke kategorisert Vestil Manualer
5 Oktober 2025
5 Oktober 2025
5 Oktober 2025
5 Oktober 2025
4 Oktober 2025
4 Oktober 2025
4 Oktober 2025
4 Oktober 2025
4 Oktober 2025
4 Oktober 2025
Ikke kategorisert Manualer
- Perfect Christmas
- Grundfos
- FABER CASTELL
- Morel
- Galcon
- Elgato
- Beautiful
- Sortimo
- Cranborne Audio
- Starlink
- SPL
- Chicco
- TDK-Lambda
- FOX ESS
- KED
Nyeste Ikke kategorisert Manualer
12 Oktober 2025
12 Oktober 2025
12 Oktober 2025
12 Oktober 2025
12 Oktober 2025
12 Oktober 2025
12 Oktober 2025
12 Oktober 2025
SVS SoundPath Tri-Band Wireless Audio Adapter Bruksanvisning
12 Oktober 2025
12 Oktober 2025