Vestil LLW-202058-FW Bruksanvisning
Vestil
Ikke kategorisert
LLW-202058-FW
Les nedenfor 📖 manual på norsk for Vestil LLW-202058-FW (21 sider) i kategorien Ikke kategorisert. Denne guiden var nyttig for 3 personer og ble vurdert med 5.0 stjerner i gjennomsnitt av 2 brukere
Side 1/21

Table of Contents Rev. 10/2/2020 LLW MANUAL
Table of Contents Copyright 2020 Vestil Manufacturing Co. Page 1 of 21
LLW, LLPW, ALLW, & ALLPW Light Load Lifters
Use and Maintenance Manual
A)LLW-FW (A)LLPW-FW (A)LLW-4SFL (A)LLPW-4SFL
Receiving Instructions
After delivery, remove the packaging from the product. Inspect the product closely to determine whether it
sustained damage during transport. If damage is discovered, record a complete description of it on the bill of lading.
If the product is undamaged, discard the packaging.
NOTE: The end-user is solely responsible for confirming that product design, use, and maintenance comply with
laws, regulations, codes, and mandatory standards applied where the product is used.
Technical Service & Replacement Parts
For answers to questions not addressed in these instructions and to order replacement parts, labels, and
accessories, call our Technical Service and Parts Department at (260) 665-7586. The Department can also be
contacted online at http://www.vestilmfg.com/parts_info.htm
.
Electronic Copies of Instruction Manuals
Additional copies of this instruction manual may be downloaded from https://www.vestil.com/page-manuals.php
.
Vestil Manufacturing Corp.
2999 North Wayne Street, P.O. Box 507, Angola, IN 46703
Telephone: (260) 665-7586 -or- Toll Free (800) 348-0868
Fax: (260) 665-1339
Web: www.vestilmfg.com e-mail: info@vestil.com
Table of Contents
Page
Specifications (dimensions, capacity, net weight): LLW & ALLW……………………………………………….......
2
Specifications (dimensions, capacity, net weight): LLPW & ALLPW………………………………………….…….
3
Signal Words….…………………………………………………………………………………………………..……….
4
Safety Instructions..…….…………..………………………………………………………………..………..………….
4
LLW-202058-FW Exploded View & Bill of Materials….…………….…………………………………....……..........
5
ALLW-2020-FW Exploded View & Bill of Materials…………………..………….…………………….......…………
6
ALLW-2020-FWFL Exploded View & Bill of Materials………………………………………………………………..
7
LLW-202058-FWFL Exploded View & Bill of Materials………………………………………………………………
8
LLW-202058-FWWL Exploded View & Bill of Materials………………………………………………………………
9
LLW-242060-4SFL Exploded View & Bill of Materials………………………………...…….………………….…….
10
ALLW-2420-4SFL Exploded View & Bill of Materials……………………………………........................................
11
LLPW-500-FW Exploded View & Bill of Materials……………………………………….....…………………….......
12
LLPW-500-FWFL Exploded View & Bill of Materials………………………………………………………………….
13
ALLPW-500-FW Exploded View & Bill of Materials………………………………………………………….………..
14
ALLPW-500-FWFL Exploded View & Bill of Materials………………………………………………………………..
15
LLPW-500-4SFL Exploded View & Bill of Materials…………………………………….…………………....……….
16
ALLPW-500-4SFL Exploded View & Bill of Materials………………………………………………………….……..
17
Raising and Lowering the Deck….……………………………………………………………………………………...
18
Using the Hand Truck..…..………………………………………………………………………………………………
18-19
Record of Satisfactory Condition………………………………………………………………………………….…….
19
Inspections & Maintenance…………………………………………………………………………….........................
20
Labeling Diagram……………………………………………………………………………………………………...….
20
Limited Warranty…...……………………………………………………………………………………………………..
21

Table of Contents Rev. 10/2/2020 LLW MANUAL
Table of Contents Copyright 2020 Vestil Manufacturing Co. Page 2 of 21
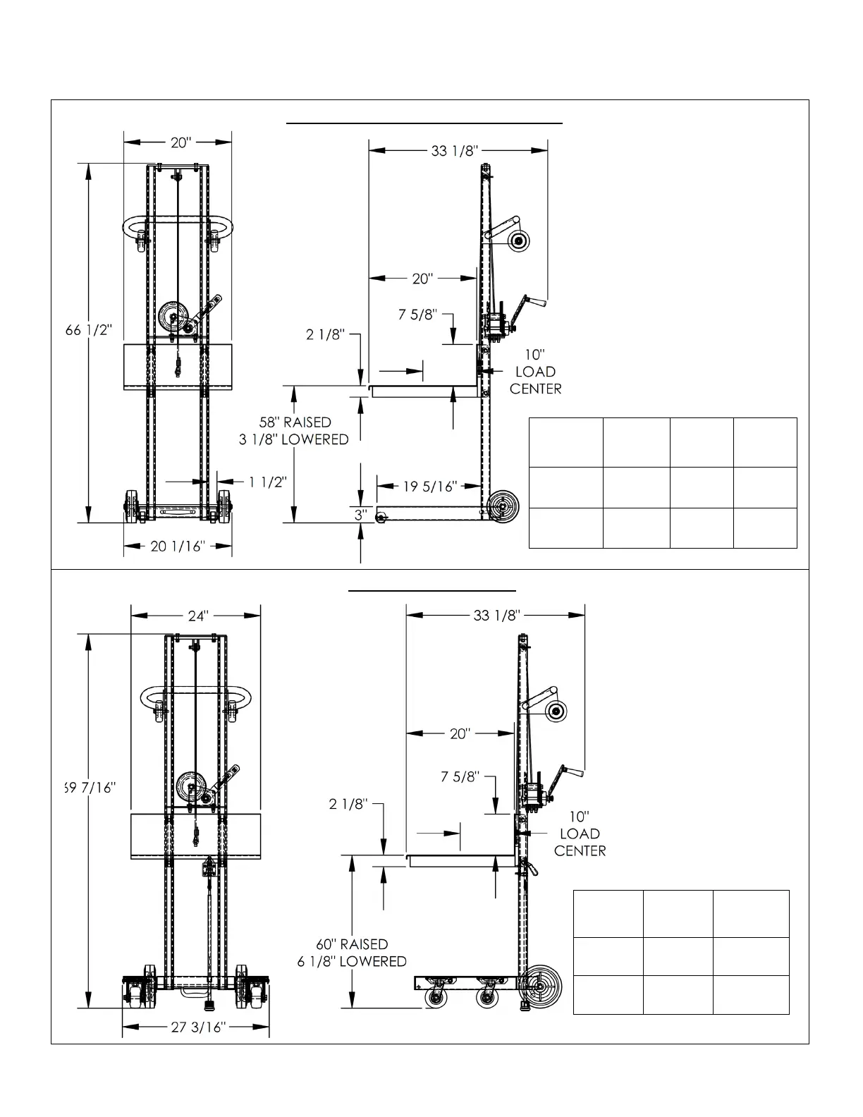
SPECIFICATIONS
Dimensions, net weight, and capacity information for standard models appear in the diagrams and tables.
MODEL
LLW-
242060-
4SFL
ALLW-
2420-4SFL
Net
weight
192 lb.
87.0 kg
127 lb.
57.7 kg
Capacity
500 lb.
227.3 kg
400 lb.
181.8 kg
MODEL
LLW-
202058-
FW
ALLW-
2020-
FW
ALL-
2020-
FWFL
Net
weight
131 lb.
59.3 kg
84 lb.
38.2 kg
86 lb.
39.1kg
Capacity
500 lb.
227.3 kg
400 lb.
181.8 kg
400 lb.
181.8 kg
10”
LLW-FW; ALLW-FW; & ALLW-2020-FWFL
LLW-4SFL & ALLW-4SFL
Produkspesifikasjoner
Merke: | Vestil |
Kategori: | Ikke kategorisert |
Modell: | LLW-202058-FW |
Trenger du hjelp?
Hvis du trenger hjelp med Vestil LLW-202058-FW still et spørsmål nedenfor, og andre brukere vil svare deg
Ikke kategorisert Vestil Manualer
5 Oktober 2025
5 Oktober 2025
5 Oktober 2025
5 Oktober 2025
4 Oktober 2025
4 Oktober 2025
4 Oktober 2025
4 Oktober 2025
4 Oktober 2025
4 Oktober 2025
Ikke kategorisert Manualer
- Ionmax
- Elbro
- KitchenAid
- Drive Medical
- Jung
- Prime3
- Oster
- Gourmia
- Gemini
- Victor Technology
- Bionaire
- Aqara
- Beurer
- ButtKicker
- Trisa
Nyeste Ikke kategorisert Manualer
12 Oktober 2025
12 Oktober 2025
12 Oktober 2025
12 Oktober 2025
12 Oktober 2025
12 Oktober 2025
12 Oktober 2025
12 Oktober 2025
SVS SoundPath Tri-Band Wireless Audio Adapter Bruksanvisning
12 Oktober 2025
12 Oktober 2025