Vestil SCTAB-2000-3240-FP Bruksanvisning
Vestil
Ikke kategorisert
SCTAB-2000-3240-FP
Les nedenfor 📖 manual på norsk for Vestil SCTAB-2000-3240-FP (15 sider) i kategorien Ikke kategorisert. Denne guiden var nyttig for 4 personer og ble vurdert med 4.3 stjerner i gjennomsnitt av 2.5 brukere
Side 1/15

Rev. 4/18/2018 SCTAB-FP, MANUAL
Copyright 2018 Vestil Manufacturing Co. Page 1 of 15
SCTAB-FP Scissor Tables with 2-Speed Auto-Shifting Foot Pump
Instruction Manual
Receiving instructions:
After delivery, IMMEDIATELY remove the packaging from the product in a manner that preserves the packaging; then
inspect the product closely to determine whether it sustained damage during transport. If damage is discovered during the
inspection, immediately record a complete description of the damage on the bill of lading. If the product is undamaged,
discard the packaging.
NOTE:
Responsibility for complying with laws, regulations, codes, and non-voluntary standards enforced in the location where the
product is used lies exclusively with the end-user.
Vestil Manufacturing Corp.
2999 North Wayne Street, P.O. Box 507, Angola, IN 46703
Telephone: (260) 665-7586 -or- Toll Free (800) 348-0868
Fax: (260) 665-1339
Web: www.vestilmfg.com e-mail: info@vestil.com
Table of Contents
Specifications………………..…………………………..………………………………………………………………………...……….. 2
Signal Words….…………………………………………………………………………………………………………………..………… 3
Hazards of Improper Use…..………………………..…………………………………..……………………………………..…………. 3
Exploded Views & Bills of Materials……………………………………………………...............................................................4 - 11
Using the Table...………………………………………………………………………………………………......................................12
Bleeding Air from Hydraulic System…………………………………………………………………………………..…
…………….12
Inspections and Maintenance……………………………………………………………………………………..……………….. 12 - 13
Labeling Diagram……...…………………………………………………………………………………………..………………... …… 13
Troubleshooting……………………………………………………………………………………………………………………… 13 - 14
Limited Warranty…...……………………………………………………………………………………………………………..… …… 15

Rev. 4/18/2018 SCTAB-FP, MANUAL
Copyright 2018 Vestil Manufacturing Co. Page 2 of 15
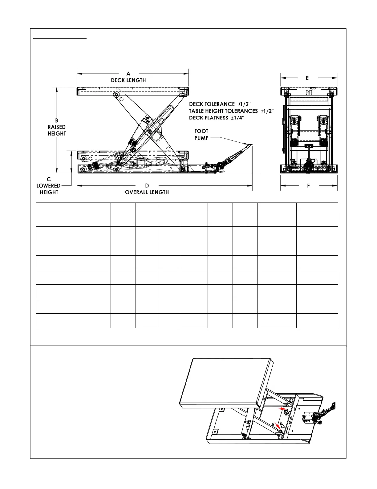
Specifications:
Dimensions for various table configurations as well as net weight and capacity information appear in the
following diagrams and table.
Model A B C D E F Capacity Net weight
SCTAB-500-2033-FP 33
3
/
8
” 28” 6” 56
1
/
16
” 20
3
/
8
” 20
1
/
2
”
500 lb.
227.3 kg
221 lb.
100.5 kg
*SCTABD-750-2040-FP 40
3
/
8
” 35
1
/
4
”
*7” 61
7
/
16
” 20
3
/
8
” 20
1
/
2
”
750 lb.
340.9 kg
249 lb.
113.0 kg
SCTABD-1000-2033-FP 33
3
/
8
” 34” 7” 56
1
/
16
” 20
3
/
8
” 20
1
/
2
”
1,000 lb.
454.5 kg
247 lb.
111.9 kg
SCTAB-1000-2040-FP 40
3
/
8
” 32” 8” 63
1
/
16
” 20
3
/
8
” 20
1
/
2
”
1,000 lb.
454.5 kg
259 lb.
117.5 kg
SCTAB-2000-2040-FP 40
3
/
8
” 32” 8” 63
1
/
16
” 20
3
/
8
” 20
1
/
2
”
2,000 lb.
909.1 kg
272 lb.
123.6 kg
SCTAB-2000-3240-FP 40
3
/
8
” 32” 8” 65” 32
3
/
8
” 32
1
/
2
”
2,000lb.
909.1 kg
337 lb.
153.2 kg
**SCTAB-2000-4242-FP 42
3
/
8
” 32” **8” 64
9
/
16
” 42
3
/
8
” 32
1
/
2
”
2,000 lb.
909.1 kg
358 lb.
162.8 kg
SCTAB-2500-2040-FP 40
3
/
8
” 31
1
/
8
”
8” 63
7
/
16
” 20
3
/
8
” 20
1
/
2
”
2,500 lb.
1136.4 kg
291 lb.
132.0 kg
*In lowered configuration, the deck overhangs the front of the frame by 5
3
/
8
”.
**In lowered configuration, the deck overhangs the front of the frame by 1
5
/
8
”.
Installation:
This table must be anchored to a reinforced
concrete foundation with
1
/
2
” anchor bolts of
adequate length determined by your building
engineer.
FootPumpmodels:Installanchorbolts
throughboltholesA,B,E,&F.
DCModularPowerUnitmodels:install
anchorboltsatpointsA,B,C,&D.
Periodically inspect the anchor points. If bolts
have loosened, tighten them. Examine the
concrete around the anchor points for damage. If
the unit can no longer be solidly anchored at its
current location, install the table in a new location.
F
E
A
B
C
D
Produkspesifikasjoner
Merke: | Vestil |
Kategori: | Ikke kategorisert |
Modell: | SCTAB-2000-3240-FP |
Trenger du hjelp?
Hvis du trenger hjelp med Vestil SCTAB-2000-3240-FP still et spørsmål nedenfor, og andre brukere vil svare deg
Ikke kategorisert Vestil Manualer
5 Oktober 2025
5 Oktober 2025
5 Oktober 2025
5 Oktober 2025
4 Oktober 2025
4 Oktober 2025
4 Oktober 2025
4 Oktober 2025
4 Oktober 2025
4 Oktober 2025
Ikke kategorisert Manualer
- Beverage-Air
- Pure 100
- Oral-B
- Duromax
- EPEVER
- Pawa
- BBB
- IFi Audio
- Spanninga
- Proscan
- Cardiac Science
- Osprey
- MARTOR
- Spear & Jackson
- Mackie
Nyeste Ikke kategorisert Manualer
12 Oktober 2025
12 Oktober 2025
12 Oktober 2025
12 Oktober 2025
12 Oktober 2025
12 Oktober 2025
12 Oktober 2025
12 Oktober 2025
SVS SoundPath Tri-Band Wireless Audio Adapter Bruksanvisning
12 Oktober 2025
12 Oktober 2025