Vestil VAN-J Bruksanvisning
Vestil
Ikke kategorisert
VAN-J
Les nedenfor 📖 manual på norsk for Vestil VAN-J (11 sider) i kategorien Ikke kategorisert. Denne guiden var nyttig for 2 personer og ble vurdert med 4.3 stjerner i gjennomsnitt av 1.5 brukere
Side 1/11

Rev. 2/26/2018 VAN-J, MANUAL
Copyright 2017 Vestil Manufacturing Corp. Page 1 of 11
VAN-J Series Vehicle Mounted Jib Cranes
Instruction Manual
Receiving instructions:
After delivery, remove the packaging from the product. Inspect the product closely to determine whether
it sustained damage during transport. If damage is discovered, record a complete description of it on the
bill of lading. If the product is undamaged, discard the packaging.
NOTE:
The end-user is solely responsible for confirming that product design, installation, use, and maintenance
comply with laws, regulations, codes, and mandatory standards applied where the product is used.
Table of Contents
Specifications & Exploded View: VAN-J…………………………………………………………………………………….. 2
Specifications & Exploded View: VAN-J-AC….…………………………………………………………………………….. 3
Specifications & Exploded View: VAN-J-DC.……………………………………………………………………………….. 4
Signal words……………………………………………………………………………………………………………………. 5
Hazards of improper use………………………………………………………………..…………………………………….. 5
Assembling the crane………………………………………………………………………………………………………….. 5
Installing the crane………………………………………………………………………………………………………………6
Storage configuration………………………………………………………………………………………………………….. 6
Function tests…………………………………………………………………………………………………………………… 6
Using the crane…………………………………………………………………………………………………………………. 7
Inspections………………………………………………………………………………………………………………………. 8
Troubleshooting Guide……………………………………………………………………………………….......................... 8 - 9
Labeling diagram………………………………………………………..……………………………………………………… 9
Limited warranty: VAN-J-AC & VAN-J-DC……………………………………………………………………………………10
Limited Warranty: VAN
-
J……………………………
………………………………………………………………………….
11
Vestil Manufacturing Corp.
2999 North Wayne Street, P.O. Box 507, Angola, IN 46703
Telephone: (260) 665-7586 -or- Toll Free (800) 348-0868
Fax: (260) 665-1339
Web: www.vestilmfg.com e-mail:
HUinfo@vestil.comU
VAN
-
J VAN
-
J
-
AC
VAN
-
J
-
DC

Rev. 2/26/2018 VAN-J, MANUAL
Copyright 2017 Vestil Manufacturing Corp. Page 2 of 11
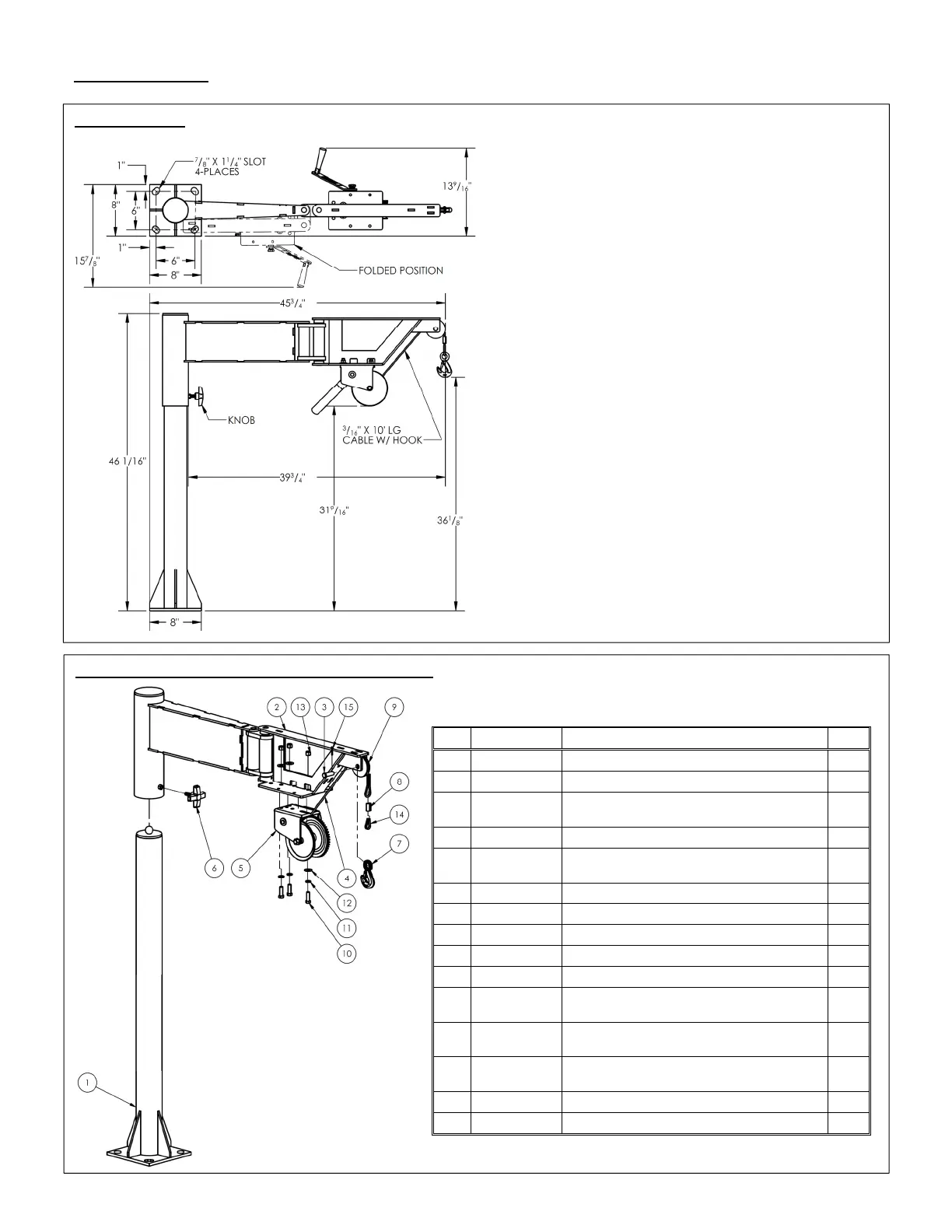
Specifications:
Crane dimensions, capacity, and net weight appear in the diagrams and tables below.
VAN-J (Manual)
Capacity = 400 lb.
Net weight = 95 lb.
Overall width = 13
9
/
16
”
Usable width = 8”
Overall length = 45
3
/
4
”
Usable length = 39
3
/
4
”
Overall height = 46
1
/
16
”
Usable height = 36
1
/
8
”
Base mounting holes are
7
/
8
” x 1
1
/
4
” slots
Rotates 360°
Manual winch includes
3
/
16
” x 10’ long cable with
hook
VAN-J Exploded Parts Diagram and Bill of Materials
Item
Part no. Description Qty.
1 28-514-098
Weldment, mast receiver 1
2 28-514-097
Weldment, arm subassembly 1
3 28-112-042
Pin,
1
/
2
”x1
1
/
2
” retaining clevis, zinc
plated
1
4 21-145-014
Specialty hardware,
3
/
16
” aircraft cable 1
5
21-042-002-
001
Manual winch, foldable handle 1
6 08-025-007
Knob,
3
/
8
”-16UNC x 1
1
/
4
” 1
7 08-145-045
Clasp hook,
3
/
4
” mouth opening 1
8 99-145-067
Compression sleeve,
3
/
16
” x 1” 1
9 99-027-003
Pulley, cable 1
10 11107 Hex bolt, gr. A, zinc finish,
3
/
8
”-16x1
1
/
4
” 3
11 33622
Split lock washer, carbon steel,
medium zinc finish,
3
/
8
”
3
12 33008
Flat washer, low carbon, USS, zinc
plated,
3
/
8
”
3
13 37024
Nylon insert lock nut, Gr. 2, zinc finish,
3
/
8
”-16
3
14 21-145-013
Specialty hardware, thimble 1
15 65076
1
/
8
”x1” cotter pin, zinc plated 1
Produkspesifikasjoner
Merke: | Vestil |
Kategori: | Ikke kategorisert |
Modell: | VAN-J |
Trenger du hjelp?
Hvis du trenger hjelp med Vestil VAN-J still et spørsmål nedenfor, og andre brukere vil svare deg
Ikke kategorisert Vestil Manualer
2 Oktober 2025
2 Oktober 2025
2 Oktober 2025
2 Oktober 2025
2 Oktober 2025
2 Oktober 2025
2 Oktober 2025
2 Oktober 2025
2 Oktober 2025
2 Oktober 2025
Ikke kategorisert Manualer
- VAIS Technology
- Everdure
- Roccat
- Thinkware
- Alcon
- Kogan
- Crucial
- Bush
- Christmas Time
- Physa
- Domo
- Echo
- AkYtec
- Fein
- Avantree
Nyeste Ikke kategorisert Manualer
2 Oktober 2025
2 Oktober 2025
2 Oktober 2025
2 Oktober 2025
2 Oktober 2025
1 Oktober 2025
1 Oktober 2025
1 Oktober 2025
1 Oktober 2025
1 Oktober 2025