Wolf IR365TTH Bruksanvisning
Les nedenfor 📖 manual på norsk for Wolf IR365TTH (2 sider) i kategorien Komfyr. Denne guiden var nyttig for 7 personer og ble vurdert med 4.9 stjerner i gjennomsnitt av 4 brukere
Side 1/2

LEGACY MODEL - 36" TRANSITIONAL INDUCTION RANGE
I R 3 6 5 T E / S / T H
FEATURES
Control heat and airflow expertly as dual convection creates just the right
cooking environment for everything from Cornish hens to cherry pie to
butternut squash
Anticipate high heat on-demand as well as the most delicate of lows
Achieve faster boils and sears through a four-zone induction power-boost
Transform two burners into one larger burner with the bridge feature
Breathe a bit easier with helpful safety measures, including cookware-
sensing burners that deactivate when an induction-compatible pan is not
in place
Operate easily with a control panel that rotates out of sight when not in
use
Assures predictably delicious results with a variety of modes including
Convection Roast, Proof, and Dehydrate
Leave nothing to chance. Our temperature probe alerts you when your
dish has reached the desired temperature for worry-free, delicious results
Includes options such as self-clean, delayed start, timed cook, Sabbath
mode, and more
Find your kitchen style with a choice of iconic red, black, or brushed
stainless control knobs
ACCESSORIES
30" Broiler Pan
36" Bake Stone Kit
36" Full-extension ball-bearing oven rack
36" Stainless Steel Kickplate
5" Stainless Steel Riser
Dehydration Kit
Filler Trim
Oven Rack Set (3)
Temperature Probe
Induction Range Knobs
Rear Caster Covers
Front Leg Extension Covers
Accessories available through an authorized dealer.
For local dealer information, visit subzero-wolf.com/locator.
KNOB OPTIONS
TOP CONFIGURATION
COOKTOP SPECIFICATIONS
• Five induction zones
• 2 - 2,100 W element with 3,000 W boost
• 1 - 2,600 W element with 3,700 W boost
• 2 - 2,100 W element
Specifications are subject to change without notice. This information was generated on February 3, 2023. Verify specifications prior to finalizing your cabinetry/enclosures.

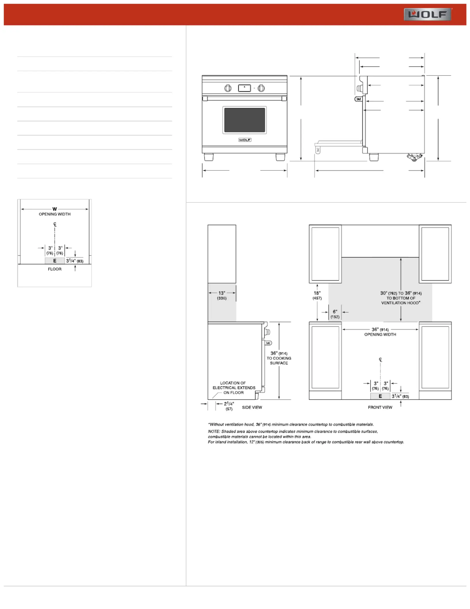
LEGACY MODEL - 36" TRANSITIONAL INDUCTION RANGE
PRODUCT SPECIFICATIONS
Model IR365TE/S/TH
Dimensions 35 7/8"W x 35 7/8"H x 29 1/2"D
Oven 1 Interior
Dimensions
30"W x 16 1/2"H x 19"D
Oven 1 Usable Capacity 3.5 cu. ft.
Oven 1 Overall Capacity 5.4 cu. ft.
Door Clearance 19 1/2"
Weight 457 lbs
Electrical Supply 240/208 VAC, 60 Hz
Electrical Service 50 amp dedicated service
ELECTRICAL
IMPORTANT NOTE: Adjacent countertops must be at least 35 7/8" for
flush installation to top of unit.
NOTE: Dimensions in parenthesis are in millimeters unless otherwise
specified
DIMENSIONS
35
7
/8" (911) 47" (1194)
26
1
/ " 8 (664)
25" (635)
24
1
/ " 8 (613)
*36" (914) MIN TO 38
1
/ " 8 (968) MAX.
36"
(914)*
36
1
/ "8
(918)*
27
1
/2" (699)
29
1
/2" (749)
STANDARD INSTALLATION
Specifications are subject to change without notice. This information was generated on February 3, 2023. Verify specifications prior to finalizing your cabinetry/enclosures.
Produkspesifikasjoner
Merke: | Wolf |
Kategori: | Komfyr |
Modell: | IR365TTH |
Trenger du hjelp?
Hvis du trenger hjelp med Wolf IR365TTH still et spørsmål nedenfor, og andre brukere vil svare deg
Komfyr Wolf Manualer
21 September 2025
21 September 2025
21 September 2025
21 September 2025
21 September 2025
21 September 2025
21 September 2025
26 August 2025
26 August 2025
26 August 2025
Komfyr Manualer
- Samsung
- Kenmore
- Elica
- Duracraft
- Falmec
- KitchenAid
- Ariston Thermo
- Marvel
- Maytag
- La Nordica
- Palazzetti
- Uniprodo
- Pitsos
- Rowi
- Fulgor Milano
Nyeste Komfyr Manualer
10 Oktober 2025
10 Oktober 2025
10 Oktober 2025
10 Oktober 2025
10 Oktober 2025
10 Oktober 2025
10 Oktober 2025
9 Oktober 2025
9 Oktober 2025
9 Oktober 2025